פרויקט חדש בגבעת שמואל: אישור תוכנית איחוד וחלוקה (427-0929372) בגבעת שמואל סולל את הדרך להקמת מתחם מגורים ומשרדים חדש בצפון מערב העיר, לאורך כביש 4. זהו המתחם האחרון מתוך שלושה שמאושר באזור זה, שעד לאחרונה כלל בעיקר שטחים פתוחים.
מה כלול בתוכנית?
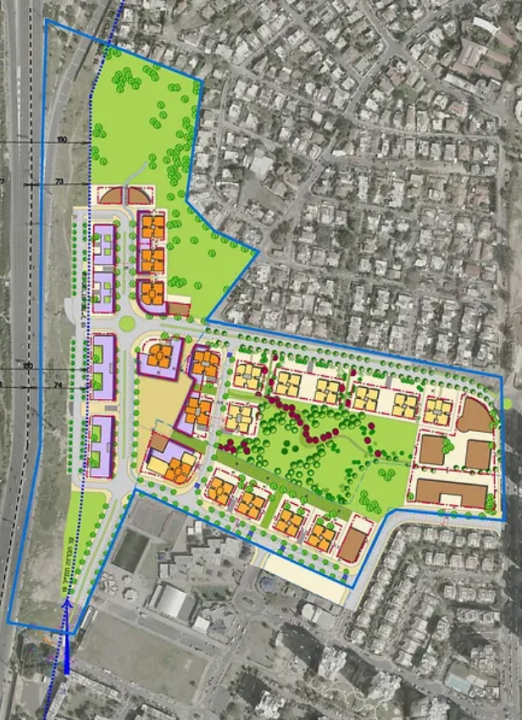
- במתחם הצפון-מזרחי הבנייה כבר החלה, והיא צפויה לכלול כ-700 דירות חדשות ב-9 מגדלים בני 18-24 קומות, 2,500 מ"ר למסחר, כ-5,300 מ"ר למבני ציבור ופארק גדול (כ-14,000 מ"ר).
- במתחם הדרום-מזרחי בוצעו עבודות תשתית (הטמנת צינורות מים, ביוב וניקוז, תשתית חשמל ותקשורת, וסלילת כבישים) והבנייה בו צפויה לצאת לדרך בקרוב. הוא יכלול כ-400 דירות ב-4 מגדלים בני 21 ו-25 קומות ובניין בן 6 קומות, בית דיור מוגן עם כ-350 דירות במגדל בן 20 קומות עם מרכז מסחרי בגודל 3,500 מ"ר בקומת הקרקע, כ-22,500 מ"ר למבני ציבור, וכ-5,000 מ"ר לפארק.
- המתחם המערבי שאושר לאחרונה כולל כ-325 דירות חדשות ב-4 מגדלים בני 22 ו-25 קומות, כ-25,000 מ"ר למסחר וכ-96,000 מ"ר לתעסוקה ב-4 מגדלים בני 14 קומות לאורך כביש 4, כיכר עירונית בגודל של כ-4,150 מ"ר, כ-8,200 מ"ר למבני ציבור וכ-38,300 מ"ר לפארק.
עוד כלולים בשכונה החדשה הרחבת והארכת הרחובות נעמי שמר וגוש חלב, סלילת רחוב ראשי חדש ממערב להם, והקמת רשת שבילי אופניים לאורכם. הפארקים יוקמו הן במזרח השכונה והן בצפונה, ובין כביש 4 לבין הבניינים יהיה פיתוח של פארק אינטנסיבי פחות, שישמש בעיקר לפעילות ספורט (הליכה, ריצה ורכיבה).
הקמת השכונה החדשה צפויה להימשך כעשור, והיא תשלים את רצף הבינוי בין גבעת שמואל לפתח תקווה באזור זה.
לעוד דירות למכירה בגבעת שמואל >>
מהן ההשלכות של התוכנית?
למרות הקירבה לכביש 4, השכונה החדשה תהיה למעשה שכונת קצה בעיר, עם חיבורים מוגבלים לרשת הכבישים העירונית – מה שצפוי להוסיף לעומסי התנועה באזור. הקו האדום של הרכבת הקלה שיתחיל לפעול בציר ז'בוטינסקי ב-2023 לא יהיה במרחק הליכה כך שלא תהיה אלטרנטיבת תחבורה ציבורית טובה לרכב הפרטי.
בנוסף, בהתחשב בכמות המשרדים הענקית שמתוכננת באזורי התעסוקה של פתח תקווה – שכן יהיו במרחק הליכה מהקו האדום – ייתכן שמגדלי המשרדים בשכונה החדשה יתקשו להתחרות על שוכרים.
לפרויקטים חדשים בגבעת שמואל >>


